
Modelos
Modelo A: Funcionalidad clásica en una planta
Vivienda: 94.51 m²
Porche (100%): 15.40 m²
Garaje: 22.16 m²
Distribución: 3 Dormitorios, 1 Baño, 1 Aseo, Salón-Comedor, Cocina independiente.


Modelo B: Vivienda: 100.06 m² | Porche: 20.01 m²
Distribución: 3 Dormitorios, 2 Baños


Modelos B y C: El encanto de los espacios exteriores


Modelo C: Vivienda: 94.48 m² | Porches: 5.27 m² (Total) |Distribución: 3 Dormitorios, 2 Baños.
Modelo D: Diseño compacto y optimización del espacio
Planta Baja: 72.07 m²
Porche (50%): 4.00 m²
Trastero: 8.72 m²
Distribución: 2 Dormitorios, 1 Baño, espacio abierto Estar-Comedor-Cocina.


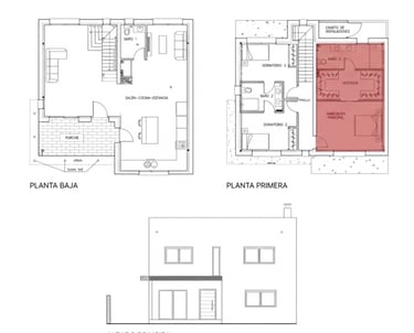
Modelo E: Amplitud y separación en dos alturas
Planta Baja: 57.45 m²
Planta Primera: 57.45 m²
Porche: 4.00 m² | Garaje: 16.45 m²
Distribución: 3 Dormitorios (planta superior), 2 Baños, 1 Aseo, Garaje integrado.


Modelo B: Vivienda: 100.06 m² | Porche: 20.01 m²
Distribución: 3 Dormitorios, 2 Baños


Modelos F y G: Líneas modernas y espacios diáfanos
Modelo C: Vivienda: 94.48 m² | Porches: 5.27 m² (Total) |Distribución: 3 Dormitorios, 2 Baños.
Modelo H: Máxima amplitud y lujo en una sola planta
Vivienda: 199.30 m²
Porche (100%): 4.80 m²
Distribución: 3 Dormitorios, 3 Despachos, 2 Baños, 1 Aseo, Despensa grande, y 2 plazas de parking en superficie.


Modelo I: Vanguardia y diseño cúbico en dos plantas
Planta Baja: 87.15 m²
Planta Primera: 86.65 m²
Porche: 11.90 m²
Distribución: 3 Dormitorios (Principal con amplio vestidor), 3 Baños, Salón-Cocina-Estancia en concepto totalmente abierto.




